Dodaj produkty podając kody
Dodaj plik CSV
Wpisz kody produktów, które chcesz zbiorczo dodać do koszyka (po przecinku, ze spacją lub od nowej linijki).
Powtórzenie wielokrotnie kodu, doda ten towar tyle razy ile razy występuje.
Syfon ukryty zapewniający wiecej przestrzeni pod umywalką
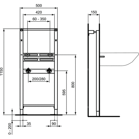
Instalacja: zabudowa podtynkowa z mocowaniem ściennym
Odporność na korozję i obciążenia do 150 kg
System montażu zapewniający szybką i łatwą instalację
Wsporniki z blokadą ułatwiającą montaż i regulacją wysokości w zakresie od 0 do 200 mm
Minimalna głębokość montażu 120 mm
Regulacja wysokości i rozstawu mocowania umywalki
Elementy w komplecie:
- Standardowy zestaw montażowy do umywalki
- Kompletny zestaw montażowy, wraz ze wspornikami ściennymi
- Kolano rury odpływu
- Przyłacza kątowe do baterii G ½ - 2 szt.
Marka
Kod IK
Symbol
K9R016067
Seria
Rodzaj towaru
Podtynkowe systemy instalacyjne
EAN
3391500580930
Długość towaru w centymetrach
117.5
Wysokość towaru w centymetrach
55
Szerokość towaru w centymetrach
9.6
Strona www producenta
www.idealstandard.pl
Zapytaj o produkt
Napisz swoją opinię







